Rv garages typically have ceiling heights of between 12 and 16.
				
									
													Garage door height for rv. 
						
													Another perk of enclosing your building is the convenience it adds. 
													Buildng own garage for rv saves on storage costs on average it should be aroudn 12 14 feet in width and 14 feet in height. 
													A rv garage door widht and height depends on the type of rv you have. 
													Garage doors sizes are available in a variety of sizes. 
											
									
						
													To determine what size rv garage door you will need its important to remember that there must be 2 feet of space between the top of the door and the eave of the garage. 
													I recommend searching out rv garage designs with 16. 
													On average it should be aroudn 12 14 feet in width and 14 feet in height. 
													Our customizable rv garage door heights and general garage sizes make it easy for you to build the perfect home for your rv. 
											
									
						
													The height is the major difference between an rv garage door and a standard replacement garage door. 
													The price for rv garage door ranges between 375 to 825 for a 12x12 size and 420 to 1059 for a 12 by 16 size these prices are an estimate and should be used as a guide only not a formal price for ones budget. 
													To determine how to properly install the perfect door you are going to want to know how the dimensions for single double commercials and rv garage doors. 
													Make sure that the design you are looking at is tall enough. 
											
									
						
													Building rv storage buildings is no different from any other type of garage except for the dimensions which will generally be taller longer and wider than a traditional vehicle garage. 
													Therefore if your garage is 16 tall you can have up to a 14 tall sectional door. 
													Rv garage doors are usually around 12 to 16 feet tall since an rv is elevated. 
													Once you have determined the appropriate size for your garage you can begin marking the land for the foundation. 
											
									
						
													Most rvs will be able to get into a 16 foot tall garage. 
													Dont assume that because it is labeled as an rv garage plan that the ceiling is automatically high enough to accept your 36 fifth wheel with a rooftop ac unit. 
													If you opt for a roll up door you would need an extra 1 of clearance above the opening for the canister. 
													You dont have. 
											
									
						
													A typical rv garage door will be 12h x 12 w for travel trailers fifth wheels and smaller class b class c and older hence lower than 12 exterior height class a motorhomes. 
											
							  
		  
			
												 
						
							
						Mighty Steel Plans
 
					 
									 
						
							
						Common Garage Door Sizes Feldco
 
					 
									 
						
							
						Roll Up Garage Door Sizes Worldofseeds Co
 
					 
									 
						
							
						Rv Garages Top 10 Metal Rv Garage Plans General Steel
 
					 
									 
						
							
						Rv Garages Top 10 Metal Rv Garage Plans General Steel
 
					 
									 
						
							
						Metal Garages Steel Buildings Steel Garage Plans
 
					 
									 
						
							
						Garage Ideas Stunning Looking For Doors Image Inspirations
 
					 
									 
						
							
						Selecting The Right Garage Door Size
 
					 
									 
						
							
						How To Fit A Truck Camper In A Standard Garage
 
					 
									 
						
							
						36x40 Apartment With 1 Car 1 Rv Garage Pdf Floor Plan
 
					 
									 
						
							
						Residential Commercial Garage Doors Northwest Door
 
					 
									 
						
							
						Rv Garage Plans With Living Quarters Matandali Com
 
					 
									 
						
							
						Flowy Commercial Garage Door Sizes F87 On Creative Home
 
					 
									 
						
							
						Is There An Average Travel Trailer Height Camping World
 
					 
									 
						
							
						Mighty Steel Plans
 
					 
									 
						
							
						Common Garage Door Sizes Feldco
 
					 
									 
						
							
						What Is The Standard Garage Door Size Garaga
 
					 
									 
						
							
						Residential Garage Doors Available Sizes Garaga
 
					 
									 
						
							
						Bradley Mighty Steel Rv Garage For Sale Rv Shelter Pricing
 
					 
									 
						
							
						Pin On Rv Garage
 
					 
									 
						
							
						Rv Door Thickness P02 Bcabinet Button Lockship Yacht
 
					 
									 
						
							
						Common Garage Door Sizes 1960s Styles Rv Sizet Plans With
 
					 
									 
						
							
						Boat Rv Garage Office 3069 1 Bedroom And 1 Bath The House Designers
 
					 
									 
						
							
						7x14 Ta Trailer Charcoal Grey Ramp Side Door Extra Height
 
					 
									 
						
							
						Garage Door Size Options Home Guides Sf Gate
 
					 
									 
						
							
						Garage Ideas Residential Door Repair Nofziger Doors 30x40
 
					 
									 
						
							
						Rv Garage Plans Motor Home Garages The Garage Plan Shop
 
					 
									 
						
							
						How Tall Is An Rv Garage Storage Door List By Rv Type
 
					 
									 
						
							
						2 Bedroom 1 Bath Apartment With 1 Car Garage And 1 Rv Bus
 
					 
									 
						
							
						Rv Garage Plans Detached Rv Garage Plan Single Bay Size
 
					 
									 
						
							
						7x14 Ta Trailer Black Ramp Side Door Extra Height
 
					 
									 
						
							
						Alp 09z4 House Plan
 
					 
									 
						
							
						What Are Standard Garage Door Sizes Jb Doors
 
					 
									 
						
							
						Schweiss Rv Garage Doors Schweiss Doors
 
					 
									 
						
							
						What Is The Standard Garage Door Height Quora
 
					 
									 
						
							
						Common Garage Door Sizes Feldco
 
					 
									 
						
							
						Garage Ideas Exquisite Standard Door Height Neoteric Rv
 
					 
									 
						
							
						Garage Doors Door Height For Rvs And Suvs A 1 Overhead
 
					 
									 
						
							
						Client Egles Mighty Steel Rv Garage
 
					 
									 
						
							
						Here S A Closer Look At A 16ft Bifold Door Designed
 
					 
									 
						
							
						Remarkable Garage Door Height Typical Uk Goodlyfe Net
 
					 
									 
						
							
						What Size Rv Garage Do You Need Explore Dimensions Door Sizes
 
					 
									 
						
							
						7x12 Ta Trailer White Flat Ront Ramp Side Door 5200 Lbs Axles Extra Height
 
					 
									 
						
							
						Rv Garage Plans Find Your Rv Garage Plans Today
 
					 
									 
						
							
						Rv Garages Top 10 Metal Rv Garage Plans General Steel
 
					 
									 
						
							
						Regular Look Garage Door Opens To A Motor Home Garage Door
 
					 
									 
						
							
						Garage Door Size For Rv Garage Doors
 
					 
									 
						
							
						Plan 68494vr Lift Friendly Spacious Garage Plan How To
 
					 
									 
						
							
						Standard Garage Door Sizes Guide Select Garage Doors
 
					 
									 
						
							
						What Size Rv Garage Do You Need Explore Dimensions Door Sizes
 
					 
									 
						
							
						How Big Is A Garage Door Ponderosa Garage Doors Repair
 
					 
									 
						
							
						Bradley Mighty Steel Rv Garage For Sale Rv Shelter Pricing
 
					 
									 
						
							
						16 X 14 Overhead Garage Door Has Ingenious Design To Appear
 
					 
									 
						
							
						Extended Height Garage Doors Make It Easy To Store Your Boat
 
					 
									 
						
							
						Garage Door Sizes Design Gray Styles Tall Ideas Fresh
 
					 
									 
						
							
						Schweiss Rv Garage Doors Schweiss Doors
 
					 
									 
						
							
						Mighty Steel 18x45 Rv Garage Color Renderings
 
					 
									 
						
							
						Raynor Specialty Size Doors National Overhead Door
 
					 
									 
						
							
						Standard Garage Door Sizes Guide Select Garage Doors
 
					 
									 
						
							
						How Tall And Wide Should An Rv Garage Door Be Campergrid
 
					 
									 
						
							
						Typical Rv Garage Size Best Garage Latest 2018
 
					 
									 
						
							
						Large Metal Buildings 32 To 60 Feet Wide Save On Large
 
					 
									 
						
							
						Rv Garage Plans Garage Loft Plan With Rv Storage And Two
 
					 
									 
						
							
						Residential Garage Doors Available Sizes Garaga
 
					 
									 
						
							
						Indoor Storage Door Height
 
					 
									 
						
							
						Garage Door Sizes What Are Common Width And Height
 
					 
									 
						
							
						38 Residential Garage Image Ideas Upfrontmama
 
					 
									 
						
							
						Carport Sizes And Dimensions Choose A Perfect Size For Carport
 
					 
									 
						
							
						Garage Door Sizes Upfrontmama
 
					 
									 
						
							
						Rv Garage Door Height Steel Building Garages
 
					 
									 
						
							
						Rv Garage Plans Detached Rv Garage Plan Single Bay Size
 
					 
									 
						
							
						Garage Door Sizes Ideal Car Dimensions Youtube Single Chart
 
					 
									 
						
							
						Garage Ideas Door Width In Supreme Standard Rv Widths Sizes
 
					 
									 
						
							
						Boat Rv Garage 1753 1 Bedroom And 1 5 Baths The House Designers
 
					 
									 
						
							
						Large Double Skillion Garage In 2019 Metal Garage Doors
 
					 
									 
						
							
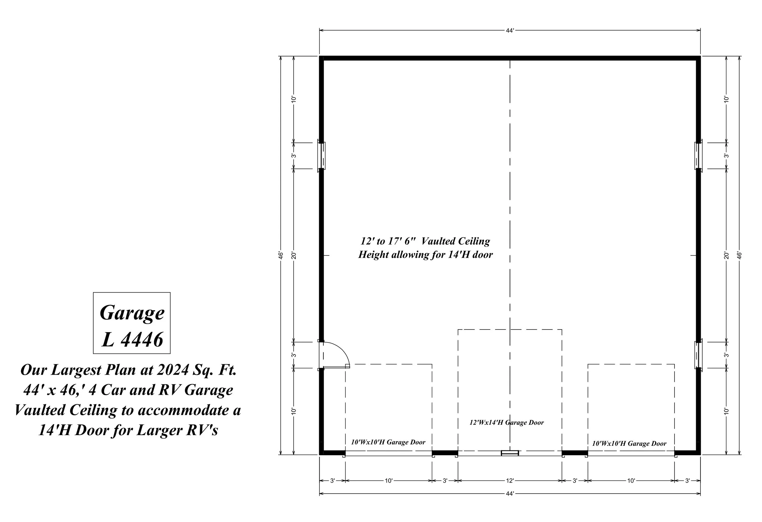
						Garage L 4446 Wechsler Custom Homes
 
					 
									 
						
							
						How Tall Is An Rv Garage Storage Door List By Rv Type
 
					 
									 
						
							
						Task Of Choosing Garage Door Sizes Dhlviews
 
					 
									 
						
							
						Garage Depth Resumeask Info
 
					 
									 
						
							
						Common Garage Door Sizes Feldco
 
					 
									 
						
							
						How Tall And Wide Should An Rv Garage Door Be Campergrid
 
					 
									 
						
							
						Garage Doors Door Height For Rvs And Suvs A 1 Overhead
 
					 
									 
						
							
						Rv Garage Goldfinch Small Home Design
 
					 
									 
						
							
						Size Of Garage Doors Daa Com Co
 
					 
									 
						
							
						Korthuis Rv Garage Door Schweiss Must See Photos
 
					 
									 
						
							
						Rv Garage Buildings Rv Storage Buildings Online Prices
 
					 
									 
						
							
						Rv Garage Doors Fort Worth Metro Motorhome Garage Door
 
					 
									 
						
							
						Garage Door Sizes Ideas Rv Foot Overhead Prices Parts Tall
 
					 
									 
						
							
						Gliderol Roller Door Ordering Dimensions Roller Shutters
 
					 
									 
						
							
						How To Choose A Garage Door Clopay Buying Guide
 
					 
									 
						
							
						What Are The Standard Residential Garage Door Sizes Banko
 
					 
									 
						
							
						Garage Door Measurements Stephaniestich Co
 
					 
									 
						
							
						Garage Door Sizes Standard Rv And Prices Chartor Kids
 
					 
									 
						
							
						Rv Garages Top 10 Metal Rv Garage Plans General Steel
 
					 
									 
						
							
						Is There An Average Travel Trailer Height Camping World
 
					 
									 
						
							
						What Are The Standard Garage Door Sizes Hunker
 
					 
									 
						
							
						Rv Garage Door Montresenvente Co
 
					 
									 
						
							
						Standard Garage Door Sizes Guide Select Garage Doors